PARTY / MICE
宴会・会議
PARTY VENUE
宴会場
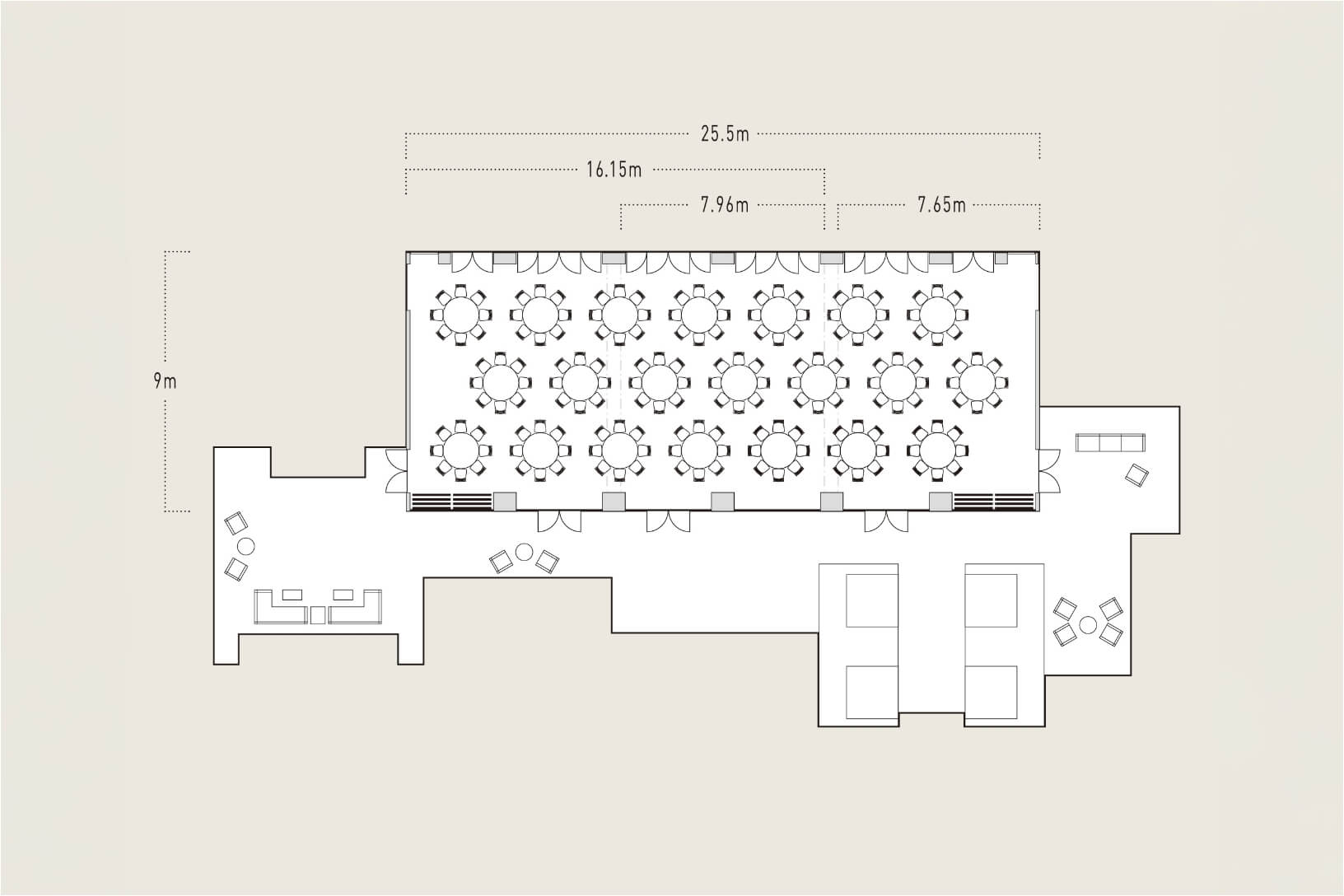
THE ROYAL BALLROOM 5F
ロイヤルボールルーム 227㎡
和の趣に神戸らしい異国文化を融合した会場。ブラウンを基調にした温かみある空間には桜舞う絵画や障子を彷彿させる照明があしらわれ、奥ゆかしい日本のエッセンスを感じる上質な雰囲気が漂います。
MEETING ROOM 3F
ミーティングルーム
壁面にアートが飾られたシックな会場や、大きな窓から自然光が降り注ぐ開放的な会場など用途に応じてご紹介。小会議室として2時間からご利用いただけますので、お気軽にお問い合わせください。
- フロア
- 3F
- 着席
- 着席 26名様
※収容人数は目安です。催事内容により変動する場合があります。
- 面積・天井高
- 21.3-43.3㎡ ・2.7m-3m
FOR EVENT POPUP
客室イベント利用
ホテルの客室をイベントスペースとしてご利用いただけます。会場とはひと味違う、プライベートで落ち着いた空間は、少人数での打ち合わせや、お祝いの席、親しい方との懇親の場としておすすめです。ご希望のスタイルに合わせて、最適なお部屋をご案内いたします。
PARTY VENUE LIST
会場一覧
| 部屋の種類 | フロア | 広さ | 天井高 | 着席 | 立食 | スクール | シアター | |
|---|---|---|---|---|---|---|---|---|
|
オリエンタルルーム(ALL) | 6F | 227.4㎡ | 3.8m | 160名 | 180名 | 136名 | 273名 |
|
オリエンタルルーム(1/2) | 6F | 110.9㎡ | 3.8m | 80名 | 80名 | 64名 | 120名 |
|
ロイヤルボールルーム(ALL) | 5F | 227.4㎡ | 3.5m | 160名 | 180名 | 136名 | 273名 |
|
ロイヤルボールルーム(1/3) | 5F | 71.3㎡ | 3.5m | 48名 | 40名 | 40名 | 72名 |
|
ロイヤルボールルーム(2/3) | 5F | 150.5㎡ | 3.5m | 112名 | 110名 | 96名 | 168名 |
|
テラスルーム | 4F | 98.1㎡ | 3.7m〜 | 64名 | 60名 | 52名 | 100名 |
|
バンブールーム | 4F | 127.1㎡ | 3m | 88名 | 90名 | 84名 | 128名 |
|
全てのフロア | 4F | ー | ー | ー | 300名 | ー | ー |
|
グレースルーム(ALL) | 3F | 43.3㎡ | 3m | ー | ー | ロの字 24名 |
コの字 26名 |
|
グレースルーム(1/2) | 3F | 21.3㎡ | 3m | ー | ー | ロの字 12名 |
コの字 10名 |
|
310号室 | 3F | 28.5㎡ | 2.7m | ー | ー | 16名 | 25名 |
Scroll
PLAN LIST
プラン一覧
150年以上の時を越えて、世界中のセレブリティーに愛されてきたジ オリエントのお料理。シーンや催しに合わせて、プランナーとシェフが心に残る美食をご用意いたします。予算に合わせたお食事のご相談も可能。お気軽にお問い合わせください。




















